Zurück zur Trefferliste

Neunkirchen, 2625 Schwarzau am Steinfeld

Wechselbundesstraße 43

Neunkirchen

Gemeinnützige Wohnungs- und Siedlungsgenossenschaft

2620 Neunkirchen
Bahnstraße 25

02635 / 64 756
wohnungsverkauf@sgn.at
http://www.sgn.at

Dieses Wohnhaus ist eine Wohnform von „Begleitetes Wohnen“, die Menschen ab dem 60. Lebensjahr, Menschen mit Behinderungen und/oder Menschen mit besonderen Bedürfnissen ermöglicht, in einer barrierefreien und gut durchdachten Umgebung zu leben.

Es ist keine Pflegeeinrichtung, sondern eine Wohnform, die sowohl Freiheit als auch Unterstützung bietet. Die Betreuung erfolgt in diesem Haus über die Volkshilfe Niederösterreich, alle benötigten Pflegeleistungen können je nach Bedarf direkt beauftragt werden.

Diese Wohnhausanlage umfasst insgesamt 16 barrierefreie Wohneinheiten im Sinne des „BEGLEITETEN WOHNENS“. Diese verfügen über einen großzügigen Wohn-Küche-Bereich, ein Schlafzimmer und Nebenräume. Die 7 Wohnungen im Erdgeschoss verfügen über eine Terrasse. Der Wohnung Top 2 verfügt zusätzlich noch über einen eingefriedeten Eigengartenanteil. Die 9 Wohnungen im Obergeschoss können bequem mit dem Aufzug erreicht werden, und erhalten einen erkerartigen Vorbau mit französischen Fenstern mit fixem Unterteil.

20 PKW-Abstellplätze sind vorhanden, wobei jeder Wohnung ein Platz fix zugeordnet ist und die restlichen 4 Plätze als Besucherplätze fungieren.

Ein Gemeinschaftsraum für Feste und Feiern, oder einfach nur für den gemeinsamen Nachmittagskaffee ist angrenzend an den Eingangsbereich. Hier ist auch einer der wesentlichen Vorteile des „Begleiteten Wohnens“, denn hier findet sich bestimmt ein Partner für ein Kartenspiel oder ein nettes Pläuschchen.

Eine großzügige Terrasse im Süden der Liegenschaft bietet auch für die Bewohner ohne eigene Terrasse genügend Freiraum, und steht allen Bewohnern zur Nutzung zur Verfügung.


Die Versorgung mit Wärme und Warmwasser erfolgt über die Fernwärme der Bioenergie Bucklige Welt. Die Wärmeabgabe in den Räumen erfolgt über Radiatoren mit Thermostatventilen.

Am Dach des Wohnhauses ist eine Photovoltaikanlage, der erzeugte Strom dient zur Unterstützung des Stromverbrauchs der Allgemeinanlagen (Gangbeleuchtung, Haustechnik…).

Die Sanitärräume der Wohnungen sind mit einer mechanischen Raumentlüftung ausgestattet und verfügen über eine bodenebene Dusche und Waschbecken, sowie hochwertige Armaturen. Das WC ist hier ebenfalls integriert.
Alle Wohn- und Schlafräume sind mit Laminatboden versehen, die Sanitärbereiche mit Fliesenbelag.
Zum Schutz vor Sonneneinstrahlung sind elektrische Außenrollläden verbaut.
Die Einlagerungsräume befinden sich im Erdgeschoss und jeder Wohnung ist ein Raum zugeordnet. Hier befindet sich auch der Gemeinschaftsraum.
Schwarzau am Steinfeld ist eine charmante rd. 2140 Einwohner zählende Gemeinde im Bezirk Neunkirchen in Niederösterreich. Die Region ist bekannt für ihre landschaftliche Schönheit und ihre Nähe zur Natur, was sie zu einem attraktiven Wohnort macht.
Schwarzau am Steinfeld bietet eine gute Auswahl an Einkaufsmöglichkeiten. Für spezielle Einkäufe oder größere Shoppingtouren bieten sich die nahegelegenen Städte Neunkirchen und Wiener Neustadt an.
Es gibt regelmäßige Busverbindungen, die den Ort mit den umliegenden Gemeinden und Städten verbinden. Vom Bahnhof in Neunkirchen oder Wiener Neustadt lässt sich Wien in weniger als einer Stunde erreichen.
Auch die medizinische Versorgung ist durch eine Ärztin für Allgemeinmedizin gewährleistet. Die nächsten Krankenhäuser sind in den nahegelegenen Städten Neunkirchen und Wiener Neustadt zu finden.
Zusätzlich verfügt Schwarzau über eine Vielzahl von Freizeitmöglichkeiten. Es gibt Sportvereine, einen Tennisplatz und zahlreiche Wander- und Radwege in der Umgebung, die zu Erkundungstouren einladen. Das kulturelle Leben wird durch verschiedene Veranstaltungen und Feste bereichert. Vor allem der örtliche Pensionistenverband bietet zahlreiche Ausflugsmöglichkeiten und Veranstaltungen an.
Insgesamt ist Schwarzau ein idyllischer Ort, der seinen Bewohnern eine hohe Lebensqualität bietet, mit einer guten Balance zwischen ländlicher Ruhe und städtischen Annehmlichkeiten.
HWB RK 26,10; SK 30,90; fGEE 0,65

Top

Stiege

Geschoss

Zi

Fläche

Lfd. Kosten

Top 1

Status
bezugsfertig
Vergabe
Typ
begleitetes Wohnen (Erstbezug)
Geschoss
EG
Wohnfläche (m²)
59,89
Anzahl Zimmer
2
Terrasse (m²)
6,54
Keller (m²)
3,53
inkl.
Parkplatz, Lift
Laufende Kosten (€)
794,00
Einmalkosten (€)
25.488,30
Vergabeart
Miete

Wohntraum-Rechner

Zu Ihrem Individuellen Angebot laut aktuellem Zinssatz.

Beschreibung

2-Zimmer-Wohnung der Superlative

Die Wohnung wirkt schon einladend aufgrund des großzügigen Vorraums. Hier gibt es genügend Möglichkeiten diesen Raum sinnvoll zu möblieren und Ihre Schuhe und Mäntel gut unterzubringen.

Ein geräumiger Wohn-Küche-Bereich wird aufgrund der Terrassentüre zum Garten ausreichend belichtet. Die Wohnung ist Richtung N/O ausgerichtet und die Terrasse lässt sich daher auch an sehr heißen Tagen gut nutzen.

Sie gelangen bequem auf Ihre Terrasse und können sich an Ihren Lieblingspflanzen erfreuen.

An den Wohnbereich angrenzend befindet sich das Schlafzimmer, welches ausreichend Platz für Doppelbett und Kasten bietet. Ein Ort der Entspannung und der Ruhe.

Das Badezimmer ist mit Waschbecken, bodenebener Dusche und WC ausgeführt. Eine Anschlussmöglichkeit für die Waschmaschine ist vorhanden.

Zur Wohnung ist der PKW-Abstellplatz Nr.: 1 zugehörig, ebenso wie der Einlagerungsraum Nr.: 1 im Erdgeschoss des Hauses.

Top 6

Status
bezugsfertig
Vergabe
Typ
begleitetes Wohnen (Erstbezug)
Geschoss
EG
Wohnfläche (m²)
57,82
Anzahl Zimmer
2
Terrasse (m²)
6,54
Keller (m²)
3,53
inkl.
Parkplatz, Lift
Laufende Kosten (€)
774,48
Einmalkosten (€)
24.738,64
Vergabeart
Miete

Wohntraum-Rechner

Zu Ihrem Individuellen Angebot laut aktuellem Zinssatz.

Beschreibung

2-Zimmer-Wohnung mit Blick ins Grüne

Die Wohnung wirkt schon einladend aufgrund des großzügigen Vorraums. Hier gibt es genügend Möglichkeiten diesen Raum sinnvoll zu möblieren und Ihre Schuhe und Mäntel gut unterzubringen.

Ein geräumiger Wohn-Küche-Bereich wird aufgrund der Terrassentüre zum Garten ausreichend belichtet. Die Wohnung ist Richtung S/W ausgerichtet. Zur Beschattung sind elektrische Außenrollläden vorhanden.

Sie gelangen bequem auf Ihre Terrasse und haben dort Platz für Ihre Sitzgruppe.

Die daran angrenzende Grünfläche muss nicht von ihnen gepflegt werden, bietet aber einen wunderschönen Rahmen um Ihre Terrasse. Wenn ihr Blick in Nachbarsgarten schweift, dann können Sie sich an seinen Bäumen erfreuen.

An den Wohnbereich angrenzend befindet sich ihr Schlafzimmer, welches ausreichend Platz für Doppelbett und Kasten bietet.

Das Badezimmer ist mit Waschbecken, bodenebener Dusche und WC ausgeführt. Eine Anschlussmöglichkeit für die Waschmaschine ist vorhanden.

Zur Wohnung ist der PKW-Abstellplatz Nr.: 6 zugehörig, ebenso wie der Einlagerungsraum Nr.: 6 im Erdgeschoss des Hauses.

Top 8

Status
bezugsfertig
Vergabe
Typ
begleitetes Wohnen (Erstbezug)
Geschoss
1. OG
Wohnfläche (m²)
60,99
Anzahl Zimmer
2
Keller (m²)
3,53
inkl.
Parkplatz, Lift
Laufende Kosten (€)
774,86
Einmalkosten (€)
25.113,47
Vergabeart
Miete

Wohntraum-Rechner

Zu Ihrem Individuellen Angebot laut aktuellem Zinssatz.

Beschreibung

2-Zimmer-Wohnung im Obergeschoss

Die Wohnung wirkt schon einladend aufgrund des großzügigen Vorraums. Hier gibt es genügend Möglichkeiten diesen Raum sinnvoll zu möblieren und Ihre Schuhe und Mäntel gut unterzubringen.

Die Wohnung ist Richtung N/O ausgerichtet. Viel Lichteinfall und den Raum vergrößernd wirken die bodenebenen Fenster im Wohnbereich. Diese Glasfront nimmt fast die Hälfte der Raumbreite ein.

An den Wohnbereich angrenzend befindet sich das Schlafzimmer, welches ausreichend Platz für Doppelbett und Kasten bietet.

Das Badezimmer ist mit Waschbecken, bodenebener Dusche und WC ausgeführt. Eine Anschlussmöglichkeit für die Waschmaschine ist vorhanden.

Zur Wohnung ist der PKW-Abstellplatz Nr.: 8 zugehörig, ebenso wie der Einlagerungsraum Nr.: 8 im Erdgeschoss des Hauses.

Top 9

Status
bezugsfertig
Vergabe
Typ
begleitetes Wohnen (Erstbezug)
Geschoss
1. OG
Wohnfläche (m²)
60,75
Anzahl Zimmer
2
Keller (m²)
3,53
inkl.
Parkplatz, Lift
Laufende Kosten (€)
775,94
Einmalkosten (€)
25.113,47
Vergabeart
Miete

Wohntraum-Rechner

Zu Ihrem Individuellen Angebot laut aktuellem Zinssatz.

Beschreibung

2-Zimmer-Wohnung im Obergeschoss

Die Wohnung wirkt schon einladend aufgrund des großzügigen Vorraums. Hier gibt es genügend Möglichkeiten diesen Raum sinnvoll zu möblieren und Ihre Schuhe und Mäntel gut unterzubringen.
Die Wohnung ist Richtung N/O ausgerichtet. Viel Lichteinfall und den Raum vergrößernd wirken die bodenebenen Fenster im Wohnbereich. Diese Glasfront nimmt fast die Hälfte der Raumbreite ein.

An den Wohnbereich angrenzend befindet sich das Schlafzimmer, welches ausreichend Platz für Doppelbett und Kasten bietet.

Das Badezimmer ist mit Waschbecken, bodenebener Dusche und WC ausgeführt. Eine Anschlussmöglichkeit für die Waschmaschine ist vorhanden.

Zur Wohnung ist der PKW-Abstellplatz Nr.: 9 zugehörig, ebenso wie der Einlagerungsraum Nr.: 9 im Erdgeschoss des Hauses.

Top 12

Status
bezugsfertig
Vergabe
Typ
begleitetes Wohnen (Erstbezug)
Geschoss
1. OG
Wohnfläche (m²)
58,92
Anzahl Zimmer
2
Keller (m²)
3,53
inkl.
Parkplatz, Lift
Laufende Kosten (€)
755,37
Einmalkosten (€)
24.363,81
Vergabeart
Miete

Wohntraum-Rechner

Zu Ihrem Individuellen Angebot laut aktuellem Zinssatz.

Beschreibung

2-Zimmer-Wohnung im Obergeschoss

Die Wohnung wirkt schon einladend aufgrund des großzügigen Vorraums. Hier gibt es genügend Möglichkeiten diesen Raum sinnvoll zu möblieren und Ihre Schuhe und Mäntel gut unterzubringen.

Die Wohnung ist Richtung S/W ausgerichtet. Viel Lichteinfall und den Raum vergrößernd wirken die bodenebenen Fenster im Wohnbereich. Diese Glasfront nimmt fast die Hälfte der Raumbreite ein.

An den Wohnbereich angrenzend befindet sich das Schlafzimmer, welches ausreichend Platz für Doppelbett und Kasten bietet.

Das Badezimmer ist mit Waschbecken, bodenebener Dusche und WC ausgeführt. Eine Anschlussmöglichkeit für die Waschmaschine ist vorhanden.

Zur Wohnung ist der PKW-Abstellplatz Nr.: 12 zugehörig, ebenso wie der Einlagerungsraum Nr.: 12 im Erdgeschoss des Hauses.

Top 13

Status
bezugsfertig
Vergabe
Typ
begleitetes Wohnen (Erstbezug)
Geschoss
1. OG
Wohnfläche (m²)
58,92
Anzahl Zimmer
2
Keller (m²)
3,53
inkl.
Parkplatz, Lift
Laufende Kosten (€)
755,37
Einmalkosten (€)
24.363,81
Vergabeart
Miete

Wohntraum-Rechner

Zu Ihrem Individuellen Angebot laut aktuellem Zinssatz.

Beschreibung

2-Zimmer-Wohnung im Obergeschoss

Die Wohnung wirkt schon einladend aufgrund des großzügigen Vorraums. Hier gibt es genügend Möglichkeiten diesen Raum sinnvoll zu möblieren und Ihre Schuhe und Mäntel gut unterzubringen.

Die Wohnung ist Richtung S/W ausgerichtet. Viel Lichteinfall und den Raum vergrößernd wirken die bodenebenen Fenster im Wohnbereich. Diese Glasfront nimmt fast die Hälfte der Raumbreite ein.

An den Wohnbereich angrenzend befindet sich das Schlafzimmer, welches ausreichend Platz für Doppelbett und Kasten bietet.

Das Badezimmer ist mit Waschbecken, bodenebener Dusche und WC ausgeführt. Eine Anschlussmöglichkeit für die Waschmaschine ist vorhanden.

Zur Wohnung ist der PKW-Abstellplatz Nr.: 13 zugehörig, ebenso wie der Einlagerungsraum Nr.: 13 im Erdgeschoss des Hauses.

Top 14

Status
bezugsfertig
Vergabe
Typ
begleitetes Wohnen (Erstbezug)
Geschoss
1. OG
Wohnfläche (m²)
58,92
Anzahl Zimmer
2
Keller (m²)
3,53
inkl.
Parkplatz, Lift
Laufende Kosten (€)
755,37
Einmalkosten (€)
24.363,81
Vergabeart
Miete

Wohntraum-Rechner

Zu Ihrem Individuellen Angebot laut aktuellem Zinssatz.

Beschreibung

2-Zimmer-Wohnung im Obergeschoss

Die Wohnung wirkt schon einladend aufgrund des großzügigen Vorraums. Hier gibt es genügend Möglichkeiten diesen Raum sinnvoll zu möblieren und Ihre Schuhe und Mäntel gut unterzubringen.

Ein geräumiger Wohn-Küche-Bereich ausgerichtet Richtung S/W und mit zusätzlichen zwei Fenstern Richtung N/W sorgt für positives Wohngefühl.

Viel Lichteinfall und den Raum vergrößernd wirken die bodenebenen Fenster Richtung S/W. Diese Glasfront nimmt fast die Hälfte der Raumbreite ein.

An den Wohnbereich angrenzend befindet sich das Schlafzimmer, welches ausreichend Platz für Doppelbett und Kasten bietet.

Das Badezimmer ist mit Waschbecken, bodenebener Dusche und WC ausgeführt. Eine Anschlussmöglichkeit für die Waschmaschine ist vorhanden.

Zur Wohnung ist der PKW-Abstellplatz Nr.: 14 zugehörig, ebenso wie der Einlagerungsraum Nr.: 14 im Erdgeschoss des Hauses.

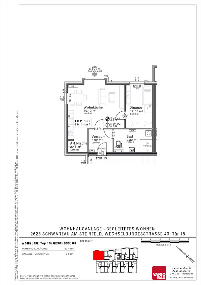
Top 15

Status
bezugsfertig
Vergabe
Typ
begleitetes Wohnen
Geschoss
1. OG
Wohnfläche (m²)
60,41
Anzahl Zimmer
2
Keller (m²)
3,53
inkl.
Parkplatz, Lift
Laufende Kosten (€)
763,12
Einmalkosten (€)
24.553,10
Vergabeart
Miete

Wohntraum-Rechner

Zu Ihrem Individuellen Angebot laut aktuellem Zinssatz.

Beschreibung

2-Zimmer-Wohnung im Obergeschoss

Eine schöne Wohnung im ersten Liftstock. Dieser Wohnungstyp bietet einen Wohn-Küche-Bereich der keine Wünsche offen lässt. Geräumig und leicht einzurichten.

Aufgrund von zwei bodenebenen Fenster Richtung N/O und einem Fenster Richtung N/W handelt sich es sich um eine ausgesprochen helle Wohnung.

An den zu Ihrer Küche angrenzenden Bereich ist auch eine Abstellraum-Nische konzipiert.

An den Wohnbereich angrenzend befindet sich ein gemütliches Schlafzimmer.

Das Badezimmer ist mit Waschbecken, bodenebener Dusche und WC ausgeführt. Eine Anschlussmöglichkeit für die Waschmaschine ist vorhanden.

Das Vorzimmer bietet Platz für Kasten und Garderobe.

Zur Wohnung ist der PKW-Abstellplatz Nr.: 15 zugehörig, ebenso wie der Einlagerungsraum Nr.: 15 im Erdgeschoss des Hauses.

Einstellungen gespeichert
Datenschutzeinstellungen

Diese Website verwendet Cookies – nähere Informationen dazu und zu Ihren Rechten als Benutzer finden Sie in unserer Datenschutzerklärung am Ende der Seite. Klicken Sie auf „Alle akzeptieren“, um alle Cookies zu akzeptieren und direkt unsere Website besuchen zu können oder wählen Sie die gewünschten Inhalte aus und klicken Sie auf "Auswahl akzeptieren".