Zurück zur Trefferliste

Mistelbach, 2144 Altlichtenwarth

Am Weinberg 545/2

Neunkirchen

Gemeinnützige Wohnungs- und Siedlungsgenossenschaft

2620 Neunkirchen
Bahnstraße 25

02635 / 64 756
wohnungsverkauf@sgn.at
http://www.sgn.at


Dieser Bauabschnitt umfasst 10 geförderte Wohneinheiten, wobei 6 davon als „Junges Wohnen“ ausgeführt worden sind. Das Gebäude ist 2-geschossig und u-förmig ausgeführt.
Des Weiteren stehen hier 15 PKW-Abstellplätze zur Verfügung, wovon 14 eine Überdachung in Form von einem Carport haben.

Jeder Wohnung ist ein PKW-Abstellplatz zugeordnet und die übrigen Plätze stehen für Besucher zur Verfügung.

Ebenso ist zu jeder Wohnung ein Außenabstellraum zugehörig.

Die Beheizung der Wohnungen erfolgt über eine zentrale Wärmepumpe und die Wärmeabgabe über Fußbodenheizung.

Zur Senkung des Energieverbrauchs befindet sich am Dach des Wohnhauses eine Photovoltaikanlage.

Die Wohnungen im Erdgeschoss verfügen eine Terrasse und einen Eigengartenanteil, die Wohnungen im Obergeschoss über einen Balkon.

Als Sonnenschutz dienen Innenjalousien.

In den vorgelagerten Nebengebäuden sind die Abstellräume sowie der Kinderwagen- bzw. Fahrradraum untergebracht.

Die Eigengärten sind durch Gartentüren auch von außen erreichbar, dies erleichtert den Abtransport von Grünschnitt sowie die Bepflanzung der Gartenflächen.

Altlichtenwarth ist mit öffentlichen Verkehrsmitteln vor allem über Busverbindungen erreichbar. Die nächstgelegenen größeren Bahnhöfe befinden sich in Mistelbach und Hohenau an der March, die beide mit dem Auto oder Bus in etwa 20 - 30 Minuten erreichbar sind. Von dort aus gibt es regelmäßige Zugverbindungen nach Wien und in andere größere Städte.

In der aufstrebenden Gemeinde gibt es einen Kindergarten und eine Volksschule, sowie zahlreiche Sportmöglichkeiten.

Zusammengefasst bietet die Gemeinde Altlichtenwarth mit den rund 790 Einwohnern, eine ruhige und naturnahe Wohnumgebung mit grundlegenden Versorgungsmöglichkeiten und Anbindungen an die öffentlichen Verkehrsmittel.


HWB: Rk 27,20; Sk 30,9; fGEE 0,68

Top

Stiege

Geschoss

Zi

Fläche

Lfd. Kosten

Top 2

Status
bezugsfertig
Vergabe
Typ
junges Wohnen (Erstbezug)
Geschoss
EG
Wohnfläche (m²)
60,00
Anzahl Zimmer
3
Garten (m²)
125,22
inkl.
Parkplatz
Laufende Kosten (€)
1.062,86
Einmalkosten (€)
3.412,83
Vergabeart
Miete

Wohntraum-Rechner

Zu Ihrem Individuellen Angebot laut aktuellem Zinssatz.

Beschreibung


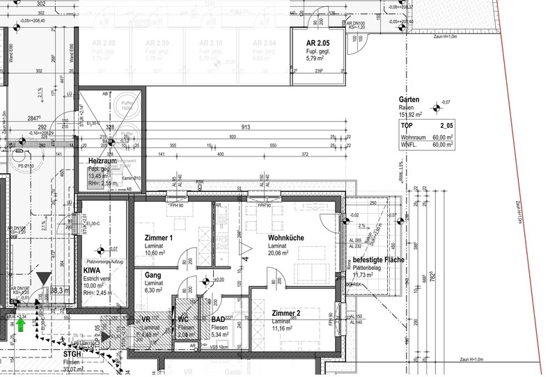
3-Zimmer-Wohnung mit Sonnenterrasse und Garten – Junges Wohnen

Über das zentral angelegte Vorzimmer sind alle Räumlichkeiten erreichbar. Geboten wird hier ein heller und freundlicher Wohn-Küche-Bereich mit direktem Ausgang auf die Terrasse und in den Eigengarten.

Dieser Wohnraum verfügt über eine riesige Verglasung Richtung S/W und bietet sich die angrenzende Terrasse für Sonnenstunden an.

Zwei weitere jeweils Richtung Eigengarten ausgerichtete Räume bieten aufgrund des praktischen Grundrisses viel Platz für Bett, Kasten und/oder Schreibtisch.

Das Badezimmer ist mit Badewanne, Waschbecken und WM-Anschluss ausgestattet. Zur Verfügung steht auch ein separates WC.

Zur Wohnung sind der PKW-Abstellplatz Nr.: 2 unter einem Carport und ein Einlagerungsraum im Außenbereich zugehörig.

Top 5

Status
bezugsfertig
Vergabe
Typ
junges Wohnen (Erstbezug)
Geschoss
EG
Wohnfläche (m²)
60,00
Anzahl Zimmer
3
Garten (m²)
153,51
inkl.
Parkplatz
Laufende Kosten (€)
1.062,84
Einmalkosten (€)
3.409,94
Vergabeart
Miete

Wohntraum-Rechner

Zu Ihrem Individuellen Angebot laut aktuellem Zinssatz.

Beschreibung

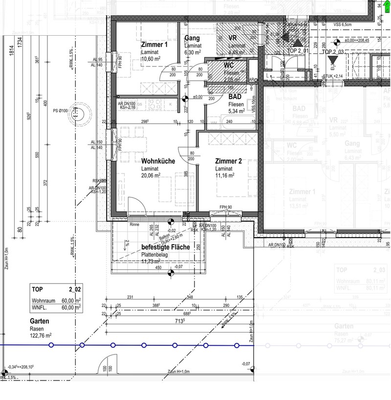
3-Zimmer-Wohnung mit besonders großem Gartenanteil – Junges Wohnen

Über das zentral angelegte Vorzimmer sind alle Räumlichkeiten erreichbar. Geboten wird hier ein heller und freundlicher Wohn-Küche-Bereich mit direktem Ausgang auf die Terrasse und in den Eigengarten.

Dieser Wohnraum verfügt über eine riesige Verglasung Richtung S/O und bietet sich die angrenzende Terrasse für Sonnenstunden an. Der Garten weist eine Fläche von rd. 151 m² auf und bietet daher allen Nutzern mit „Grünem Daumen“ eine tolle Gelegenheit.
Vielleicht planen Sie ja schon den Standort für Ihr Hochbeet oder den Platz der Sandkiste für Ihre Kleinen.

Zwei weitere jeweils Richtung Eigengarten ausgerichtete Räume bieten aufgrund des praktischen Grundrisses viel Platz für Bett, Kasten und/oder Schreibtisch.

Das Badezimmer ist mit Badewanne, Waschbecken und WM-Anschluss ausgestattet. Zur Verfügung steht auch ein separates WC.

Zur Wohnung sind der PKW-Abstellplatz Nr.: 5 unter einem Carport und ein Einlagerungsraum im Außenbereich zugehörig.

Top 8

Status
bezugsfertig
Vergabe
Typ
Wohnung (Erstbezug)
Geschoss
1. OG
Wohnfläche (m²)
79,86
Anzahl Zimmer
3
Balkon (m²)
8,44
inkl.
Parkplatz
Laufende Kosten (€)
1.161,69
Einmalkosten (€)
3.759,37
Vergabeart
Miete

Wohntraum-Rechner

Zu Ihrem Individuellen Angebot laut aktuellem Zinssatz.

Beschreibung

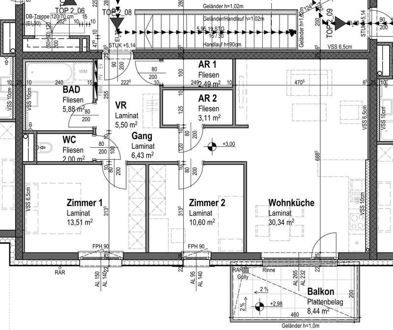
3-Zimmer-Wohnung Richtung Sonne

Diese wunderschöne Wohnung ist S/W-seitig ausgerichtet und verfügt über einen großzügigen Wohn-Küche-Bereich mit Ausgang auf den Balkon.

Je nach Lust und Laune lässt sich Ihr Balkon zur „Chill-Out-Area“ einrichten.

Ein Badezimmer mit Badewanne und WM-Anschluss, sowie Waschbecken und ein separates WC stehen zur Verfügung.

Ein zentrales Vorzimmer und zwei Abstellräume runden das Angebot dieser wunderschönen und extrem hellen Wohnung ab.

Zur Wohnung sind der PKW-Abstellplatz Nr.: 8 unter einem Carport und ein Einlagerungsraum im Außenbereich zugehörig.

Einstellungen gespeichert
Datenschutzeinstellungen

Diese Website verwendet Cookies – nähere Informationen dazu und zu Ihren Rechten als Benutzer finden Sie in unserer Datenschutzerklärung am Ende der Seite. Klicken Sie auf „Alle akzeptieren“, um alle Cookies zu akzeptieren und direkt unsere Website besuchen zu können oder wählen Sie die gewünschten Inhalte aus und klicken Sie auf "Auswahl akzeptieren".